F&M Building | Lockport
Architect: Kideney Architects
Project Start: Q3 2026
Project Completion: 2028
An affiliate of Savarino Co is undertaking the adaptive reuse of the former Farmers and Mechanics Bank building (F&M) in Lockport, NY.
The Beaux-Arts structure sits at 116 Main Street in the heart of downtown Lockport. At seven stories, it is Lockport’s tallest building. The structure is currently abandoned but was previously secured and maintained by the former owner, Elmer Granchelli, and Granchelli Development.
Kideney Architects is designing the project. KTA Preservation Specialists is serving as the historic consultant. Savarino Construction Services LLC will serve as Construction Manager for the project, which will also be managed by Savarino.
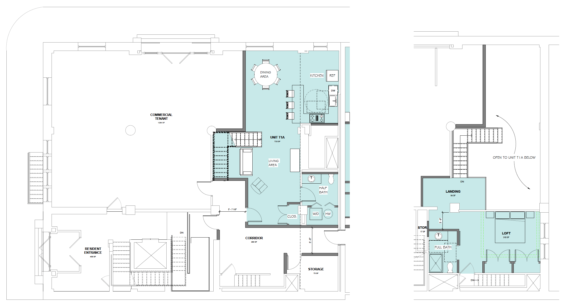
Savarino is planning 16 luxury market-rate apartment units on the upper floors, incorporating many of the building's historic elements. The former bank floor on the first floor, as well as the basement space, will be devoted to commercial use. See floor plans in the gallery below.
Savarino has obtained approvals from NYS SHPO and the National Park Service to place the building on the National Register of Historic Places, owing to its unique style and its connection to the history of Lockport.
Several years ago, Savarino worked with the City of Lockport and the Greater Lockport Development Corporation to obtain a grant for the project from Empire State Development’s Restore New York program. The Farmers & Mechanics Building is also a component of the City of Lockport’s successful Downtown Revitalization Initiative plan submission to New York State.
Savarino will commence construction in the third quarter of 2026, with completion scheduled for early 2028.
Related press
“Savarino Buys F&M Building in Lockport”
Buffalo News, March 2026
“Lockport’s F&M Building to Redevelop Into Luxury Apartments”
WKBW, July 2024
“Sam Savarino buys historic Lockport bank”
Buffalo Business First, July 2024
“Savarino Returns To Complete Three Projects in Buffalo Area”
Buffalo News, July 2024